Melding om vedtak - Områderegulering for Mørkved bydelssenter

Bodø Bystyre har i møte 30.10.2025 vedtatt områdereguleringsplan for Mørkved bydelssenter. Frist for å klage på vedtaket er 30.11.2025.

Vedtak

Bodø bystyre vedtar områdereguleringsplan for Mørkved bydelssenter, PlanID 2019006, slik det er vist på plankart sist datert 10.09.25 med tilhørende reguleringsbestemmelser datert 12.09.25 og planbeskrivelse datert 12.09.25.

Vedtaket fattes i henhold til plan- og bygningslovens § 12-12.

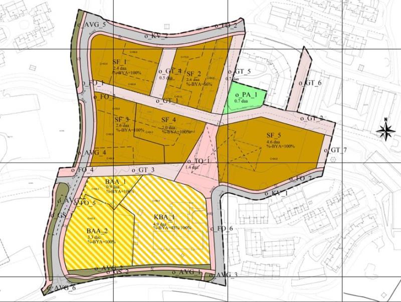
Reguleringsplanen

Formålet med planen er å bidra til en fremtidsrettet utvikling av Mørkved bydelssenter og Mørkved som helhet, i tråd med Bodøs langsiktige mål og bydelens egne behov. Planen legger til rette for en trinnvis utvikling med krav om detaljreguleringer. Målet er å skape et attraktivt bydelssenter med et stort innslag av nye boliger, nye byrom, dagligvare, restauranter, kafeer og service – i sum et bedre byliv og en estetisk oppgradering. Det legges opp til ulike alternativer for byggehøyder og utnyttelse av området. Byromstrukturen fastlegges med hensikt å oppnå attraktive byrom som knytter sammen viktige funksjoner i området og skaper gode møteplasser. Planen er utarbeidet av Bodø kommune.

Klage og krav om erstatning

Eventuell klage merkes med saksnummer 2018/15923 og stiles til Statsforvalteren i Nordland, men sendes til postmottak@bodo.kommune.no, eventuelt til Bodø kommune, postboks 319, 8001 Bodø. Frist for å klage på vedtaket er 30.11.2025.

Eventuelle krav om erstatning eller innløsning etter plan- og bygningslovens §§ 15-2 og 15-3 må være skriftlig fremsatt ovenfor Bodø kommune innen tre år fra denne kunngjøringen.

Hvordan klage på planvedtaket?

Se kommunens nettside for informasjon om hva som skal til for å klage og hva som vurderes i behandling av en klage: 

Bistand

Eventuelle spørsmål eller avklaringer angående saken kan rettes til Hanna Landfald Hanssen: hanna.landfald.hanssen@bodo.kommune.no.

Dokumenter

Relevante dokumenter er tilgjengelig i kommunes innsynsportal (trykk på knapp under)

Innsynsportal